Полиэтиленовый кабельный колодец |
Область применения
Полиэтиленовый кабельный колодец ПКК-2У-М1 предназначен для создания систем кабельной канализации на городских, местных и ведомственных сетях связи. Колодец может использоваться в качестве смотровых устройств, а также в качестве подземных контейнеров с целью размещения пассивного телекоммуникационного оборудования.
Устанавливается в категориях грунтов 1, 2, 4 (кроме мерзлых) по ГОСТ 25100-95.
Технические характеристики
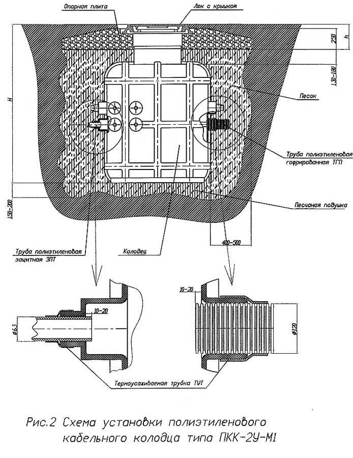
Колодец ПКК-2У-М1 является аналогом железобетонного колодца типа ККС-2, имеет с каждой стороны по 4 патрубка-ввода, через которые можно осуществлять ввод гофрированных полиэтиленовых труб с условным проходом 100 мм и/или ввод защитных полиэтиленовых труб (ЗПТ) наружным диаметром от 25 до 63 мм. Колодец может быть использован как проходной, угловой или разветвительный.
Для предотвращения выдавливания (всплытия) пластмассовых кабельных колодцев от воздействия грунтовых вод и для предотвращения сжатия при возможном наезде транспортных средств массой до 12 т на колодец через промежуточную песчаную подушку устанавливается железобетонная опорная плита ОП-1-80. В проем плиты вставляется чугунный люк с крышкой, размещаемый над крышкой колодца. В этом исполнении опорная железобетонная плита позволяет пластмассовому колодцу выдерживать нормированные транспортные нагрузки.
Применение пластмассовых колодцев облегчает процесс строительства кабельной канализации связи. Монтаж пластмассовых колодцев в составе кабельной канализации осуществляется в несколько раз быстрее со значительно меньшими затратами, чем при установке железобетонных колодцев. Это определяется тем, что пластмассовые колодцы значительно легче железобетонных. Ввод в пластмассовый колодец труб кабельной канализации осуществляется быстро и обеспечивает надежное, герметичное соединение.
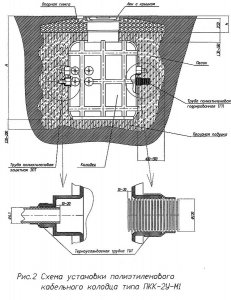
На рисунке представлена схема монтажа пластмассового кабельного колодца с пластмассовыми трубами для различных вариантов систем пластмассовой кабельной канализации.
Преимущества
высокая степень герметизации;
возможность построения сложных конфигураций кабельной канализации связи;
снижение эксплуатационных затрат;
высокая ударопрочность, в т.ч. при отрицательных температурах (до -40ºС);
срок службы – не менее 50 лет.
Номенклатура
Габариты пластмассового колодца:
- длина 1290 (мм);
- ширина 984 (мм);
- высота 1610 (мм);
Масса колодца в сборе – 170 кг. Цвет – черный.
Сертификат и разрешение
Пластмассовые колодцы прошли стендовые испытания в ГУП «НИИ Мосстрой». Результаты подтвердили соответствие параметров колодцев нормативным требованиям. Пластмассовые колодцы рекомендованы к применению на городских, местных и ведомственных сетях связи.
Просмотр cертификатов и разрешений
Стандартное исполнение
Колодец внутри оборудован двумя сборно-разборными металлическими каркасными элементами – «стрингерами», придающими ему необходимую жесткость. «Стрингеры» одновременно являются несущей системой для установки кронштейнов, кабельных консолей и запасов кабелей. Верхнее входное отверстие колодца оборудовано защитной пластмассовой крышкой-заглушкой, предотвращающей проникновение в колодец грязи и влаги, а также обеспечивающей защиту от несанкционированного проникновения внутрь колодца.
Возможное исполнение (по заказу)
- Цвет по желанию заказчика.
- Дополнительные входы – выходы.
- Дополнительные кронштейны для специального оборудования.
Проектирование
При проектировании систем кабельной канализации на городских, местных и ведомственных сетях связи с применением пластмассовых колодцев необходимо руководствоваться:
ВСН 116-2002. Ведомственные строительные нормы. Инструкция по проектированию линейно-кабельных сооружений связи, Минсвязи России, 2002г.;
ВСН 111-93. Инструкция по проектированию линейно-кабельных сооружений связи, 1993;
ВНТП 112-98. Ведомственные нормы технологического проектирования. Городские и сельские телефонные сети, Госкомсвязи России, 1998г.;
РД 45.120-2000. Нормы технологического проектирования. Городские и сельские телефонные сети;
Руководство по строительству линейных сооружений магистральных и внутризоновых кабельных линий связи, Минсвязи СССР. «Радио и связь», 1986г.;
Руководство по строительству линейных сооружений магистральных и внутризоновых оптических линий связи – 1993г.;
Руководство по строительству линейных сооружений местных сетей связи. ч.I и II, Минсвязи России. – ОАО «ССКТБ-ТОМАСС», 1996.
Монтаж и эксплуатация
При монтаже и эксплуатации систем кабельной канализации на городских, местных и ведомственных сетях связи с применением пластмассовых колодцев необходимо руководствоваться:
«Инструкция по установке и монтажу полиэтиленовых колодцев кабельной канализации связи ПКК-2У», ОАО «ССКТБ-ТОМАСС», Москва, 2005г.;
Руководство по строительству линейных сооружений местных сетей связи. ч.I и II, Минсвязи России. – ОАО «ССКТБ-ТОМАСС», 1996;
СНиП 3.01.04-87. Приемка в эксплуатацию законченных строительством объектов. Основные положения, 2003г.;
Временные правила приёмки в эксплуатацию законченных строительством объектов связи общего пользования в РФ. Приказ Минсвязи РФ №146 от 19.12.1995. Дополнение от 25.02.97. Приказ №31;
Временная инструкция по приёмке в эксплуатацию линейных сооружений ВОЛП в ПВП кабелеводах и составлению исполнительной документации на сдаваемые линейные сооружения, 1998 г.
Правила ввода в эксплуатацию сооружений связи. Утв. Приказом Минсвязи 09.09.2002 г., 2002г.
Транспортировка, хранение, упаковка
Колодцы с плотно закрытыми крышками следует хранить под навесом при температуре от - 50оС до +50оС. На строительных площадках при температуре воздуха выше 20оС колодцы следует защищать от попадания прямых солнечных лучей.
